Villetta a Schiera

  • €290.000
Viale Paolo Cantatore, Stornarella, FG, Italia

Villetta a Schiera

Viale Paolo Cantatore, Stornarella, FG, Italia
  • €290.000

Descrizione

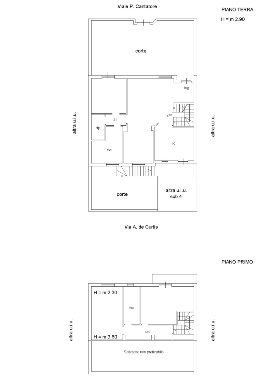
Villetta a schiera disposta su più livelli, con giardino antistante, veranda retrostante e accesso diretto al box auto.

L’immobile è composto al piano terra da:

  • ampio salone con camino;
  • cucina abitabile con accesso diretto alla veranda retrostante;
  • disimpegno, camera da letto matrimoniale;
  • comodo ripostiglio/lavanderia;
  • sala da bagno con doppio lavabo.

Al piano primo si sviluppa la zona notte, composta da:

  • ampio ingresso,
  • camera matrimoniale,
  • tre camerette,
  • bagno di grandi dimensioni

Tramite scalinata interna si accede alla tavernetta, dotata anch’ essa di camino, perfetta come ambiente ricreativo o soggiorno aggiuntivo.

L’abitazione è interamente climatizzata e presenta ambienti spaziosi e ben distribuiti, pensati per garantire il massimo comfort abitativo.

Completano la proprietà il box auto,con possibilità di parcheggiare 2 autovetture, e gli spazi esterni ben  curati con piante ornamentali

  • Indirizzo Viale Paolo Cantatore, Stornarella, FG, Italia
  • Città Stornarella
  • Stato Puglia
  • CAP/Codice Postale 71048

Dettagli

  • Codice Immobile: sara_11356
  • Prezzo: €290.000
  • Dimensioni Immobile: 198 m²
  • Camere da letto: 5
  • Camere: 8
  • Bagni: 3
  • Anno di costruzione: 2011
  • Tipologia Immobile: Ville
  • Stato della proprietà: In Vendita

Calcolo Mutuo

Mensile
  • Rata con Interessi
%

*: Le informazioni derivanti da queste simulazioni sono puramente indicative, in questo senso i dati finanziari analizzati possono variare nel corso della richiesta e della concessione del prestito da parte di ogni istituzione finanziaria. L'unico scopo di questo strumento è quello di fornire indicazioni sul costo stimato in base ai dati indicati dall'utente e non rappresenta in alcun caso un'offerta contrattuale, nè l'approvazione dell'opeazione da parte delle entità finanziate nè un impegno o un vincolo giuridico-legale da parte di Sara Immobiliare

Informazioni di contatto

Sara Cucchiaro

Richiedi informazioni su questa proprietà

Annunci simili

Confronta gli annunci

Confrontare
Sara Cucchiaro
  • Sara Cucchiaro